云熙雅苑
大隐隐于市
位置:广州
类型:别墅
规模:21601平方米
时间:2009年
阶段:建成
项目简介:
项目卫星图
项目鸟瞰图
实景图一
实景图二
实景图三
实景图四
实景图五
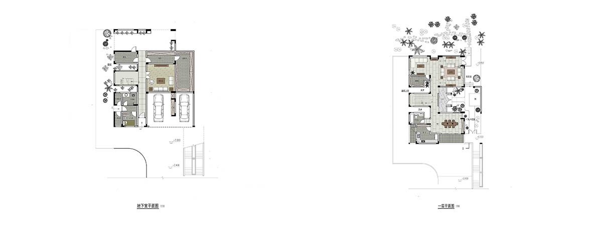
别墅户型图
别墅户型图
首 页
介绍
About
项目
Project
联系
Contact
策划 规划
住宅区 公寓
别墅 院子
庄园 会所
酒店 商业 办公
企业总部 企业展陈
医疗 博览
其他
公司
招聘
首页
Home
介绍
About
项目
Project
策划 规划
住宅区 公寓
别墅 院子
庄园 会所
酒店 商业 办公
企业总部 企业展陈
医疗 博览
其他
联系
Contact
公司
招聘