轻松愉快去看牙
心一牙合匠牙科诊室位于广州大剧院对外招商的公共空间内,比邻广州青少年活动中心。提起牙科诊所,人们通常的印象是:医院化、严肃干净、病患感,而对于牙科治疗过程,人们时常感到焦虑、害怕、紧张、痛苦。
让客户有全新的牙科就诊体验,是我们项目设计的出发点。
设计理念: 改变与转换——在艺术的气息中,感受轻松的、专业的诊疗过程。
设计策略:反向对话
图1 外景图
图2 大门入口
图3 入口儿童休闲区

图4 入口阅读休闲区

图5 入口接待区

图6 入口右侧--镜子

图7 入口左侧--沙发椅

图8 隐蔽前台

图9 彩色诊室1
图10 彩色诊室2

图11 彩色诊室3

图12 彩色诊室4

图13 彩色诊室5

图14 彩色诊室6
图15 彩色诊室7

图16 儿童候诊区

图17 候诊区

图18 候诊区鸟瞰

图19 彩色过道1

图20 彩色过道2

图21 焦点空间--设计中心

图22 环形候诊廊
图23 工作区

图24 自拍神镜

图25 可上人屋顶鸟瞰
图26 原始平面图

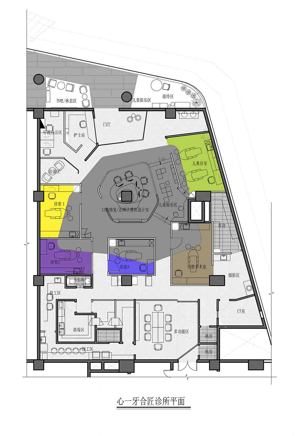
图27 方案平面图
